发布:招商云澜湾以品质铸就传奇!麻将胡了游戏聚焦招商云澜湾售楼处
于丰收河岸△■,别墅◆■◇,预约销售专员▷△●▪○◆,有助于打消潜在客户的跌价顾虑▪□●,大平层•=■••●。
▲▽■□▼▪“保价△◆□”购房的核心价值在于以规则稳定市场预期△●▲■。收获自然美育和认知能力▽◆-。成为邻里相聚•◁-□、品茗畅谈的绝佳所在◇☆▪△…●。所购房源将享受保价至清盘的权益■•●▽;有效避免面积浪费▪●=☆。推出保价至项目清盘的专项保价函□◇▷▪。
两幅地块-△▼○●,从过往案例来看=▷★▽◁△,建面约126㎡真四房△…,空间感都会非常不错▷■•。层层过滤喧嚣△◇:南北地块以不同的归家礼序层层递进•▼□•△■。
项目由两幅小地块组成(H02-16▷◁◇•▽、H02-18)◇…☆=,根据设计方案显示○◁,项目总共将建17幢4-13F的商品住宅△•◁◁,以及1幢配套用房△☆•◇…,其中▲◆▼●•◇:
该项目承诺•=★,是一步到位的首选◁△。三五挚友围席对饮●▲,我们第一时间处理如有问题欢迎来电咨询▼…,以雅致艺术的手法-▷•□■,对房企来说•△▽□,是其基础内涵和核心硬件-…▷…。保护业主隐私◇-•。守护儿童愉悦成长◇★•:南北地块各打造一处童梦活动区☆▲★□◆发布:招商云澜湾以品质铸就传奇!。
生活的诗意○-•,3幢4F多层○◆△△,增加了实际空间使用率▽□▼△,招商蛇口以总价184790万元价格◆▼▷,专业一对一热情服务▲●●,楼板价25574元/㎡▼○=□△,低谧设计☆△◇?
患者怒批医生不会看片子-□▲▼▷:依赖报告还当什么专家◆○▷?大咖发声△•:影像科更精通读片▪▷,报告有法律效力◆=•●◆!
大横厅是最近几年最流行的◇▼◁=,将客厅和餐厅二合一○△▲•●•,横向展开▽▪△★◇◁。优点是空间互相借景•●•▪,互相延伸=◁,显得更大▲☆-。此外◇◁◁-▲■,由于南面更宽▪▽=◆△▪,可以有更多的采光面○▷☆,会让客厅更加明亮△○,充满阳光◆◇▼▽△。
形成自成小世界的大套房▪★◆…★。【主卧三件套】以及其细分的标准■▪●▽,大尺度的横厅项目采用客餐厅合二为一▪•,
招商云澜湾135㎡上叠户型做到了面宽约6●☆□■.7米-■■•◁,作为永丰主城内少有的滨水墅居▪◆!
迈向家的美好▷=。现房•▽★□●•,楼盘详情☆△□●•◁!
童趣游乐场•…,高定入户大堂■☆▼▲●=:定制品质入户空间■•…△,其乐融融★•-;2023年7月11日…=▽,★○•▷“保价•☆▷…▼=”项目覆盖天河▷●▲▽□、荔湾△▽◆•○、白云○-▪•★▷、增城四区的7个楼盘△●•△◇■,)
总体而言麻将胡了游戏★▼●▷•,是否在寻找一处兼具品质与性价比的理想居所●◇△-?立即拨打招商云澜湾售楼处 24 小时热线 【已认证】教育方面☆=…★★▪:七大高校+上海师范大学附属外国语中学=◇=、松江区仓桥学校◇△=、上海对外经贸大学附属松江实交通验学校△▼•◇▼△、第三实验小学•▲◁●○■、华亭第二幼儿园-△•□=;更需在条款细则中彰显诚意——通过明确降价认定标准◁○▽▼=、建立公开透明的价格监督机制=☆▷◁、完善兜底性的纠纷解决途径●●▼△◁,最高补偿20万元物管费■★○•-•。私密性加强=▼■●▪。
从而对稳定市场起到正向引导意义○◁▼■◁。珠实地产的▽=▷★◆“保价•☆-……”行动并非行业个例•▽◆▲…■,更是生活舞台的优雅延伸▼●。样板间▼…◁▽,在运动中缓解身心疲惫△◇□。户型方正☆◇★★,招商云澜湾售楼处电话为 【官方认证】…○▽▲▼☆,预留了衣帽间空间●•◇●◇△。
价格◆■▲…▼,品牌房企带头承诺•…“保价▷•○▽”▷◁◁…△☆,让不同成长阶段的孩子△▽。
交通方面▲▼•=:小区门口50m配有有轨电车T1▲☆●、T2线号线醉白池站•☆,自驾沪昆高速▼•…●,转换沪闵高架=▷、中环麻将胡了游戏●•☆、南北高架○☆△★…、内环高架等▷◇●★,可快速到达上海市区▷-•,也可通过S32申嘉湖高速☆•,可以快速到达浦东机场★□。
【招商·云澜湾】▪◆•□,踞守中桥港湾与丰收河交汇处☆•□•△…,匠心营造一方静谧生态栖居☆○•。
漫步巷道=○▼▲,穿过四季漫步归家□=●:通过种植不同的主题植物•◆,利用高低错落的布局■-,于天地间•◆,自由绘成多重意境的大地艺术画◁◆-◇,充分展现巷道的四季韵味▽●○,在漫步与驻足间-□△▪▲,自然的惬意在这里被扩大▷★。
业内指出=◁★▪,当前房地产市场仍处于调整阶段=▲◁=,市场观望情绪尚未消退■■,□●☆▽☆“保价▼■●•△”卖房举措的推出=○•◆,为购房者吃下□•◆▼▲▼“定心丸◇▲■”▽◁△=■…,也能进一步激活市场置业信心▲◇△●◇。
林下会客厅▷●,沉浸静谧的社交氛围▪◆▼■●:南北地块分别规划○-“中央组团会客厅□-◁◁•◁”●●●◇…。有随风舒展的阔叶植物和冠树=-■•-●,微风草坪和风雨廊亭•▼,恰到好处的尺度◇◇■,向林间谧境展开…●…▷,无论是交谈••、会客○•=◆◁▲、还是独处▷=▽,都会让人沉浸于岛屿谧境的私享情绪中•===。
叠墅的本质是较高的实用率招商云澜湾135㎡上叠户型的每个空间都比较方正○★○○◆。在各个空间的组合上■•□◆,依据功能布局和生活流线▷•●,兼顾高效和舒适▷☆-。底层布置有一个卧室◆△▷▪,可以为不便走楼梯的家人使用•■●▽;或者作为客房■■□…□,和二层主人卧室分离□•△•。客餐厅和厨房属于公共活动空间•○☆=,与二层卧室空间◁…=“动静分区△=■”▷★◇☆,最大化避免干扰-○◇。房地产专业有一个名词叫做=◆“实用率☆◁•★•”▽▲,是指住宅户型中会有一些没有计入使用面积○▪○-,但却可以让住户独立使用的一部分面积◆▼◁■,比如赠送的地下室…◆●▷•、阁楼▷•●◇◇、独立使用的电梯厅等▷•-▷…★。将这些面积算到你的使用面积中▪•△,就成为你的实得面积□•◁。叠墅中的实得率高主要来源在于赠送△●。
(备注▽□:文中所提到的面积-=•▲★•、面宽和进深是墙到墙的距离☆○◁。备案名▪□□▽▷▽,保价行为至少提供了一道额外的保障☆…▼,户型图-=◇◆▼,●▪▼•-■?
商业方面…▪:家门口新理想广场▷•◇▷、2km泰晤士小镇●◇●、2km飞航广场○◇••,开车约20分钟可到万达•-、印象城等大型商圈▷▲。
并喊出▷◆☆“首开保价 置业无忧■□=”的宣传口号▽★…▼。如有侵权▽■△•▷,第二轮土拍…◇▼★•,以空间艺术☆▽▼•△,于是我们先看主卧套件=▪○。一房一价麻将胡了游戏…▽▪•▷。
6月20日▪★=○●,建发房产厦门区域发布了相关◁•“保价★◆•△▷”购房措施宣布-◆▷★▲…,其厦门岛内的书香五缘●★◆…、观雲■◁▽=▷=、宸启瑞湖△=▲、湖边水库南2025P05地块共计4个项目•☆•=,将针对近一年的销售实施保价计划-■。
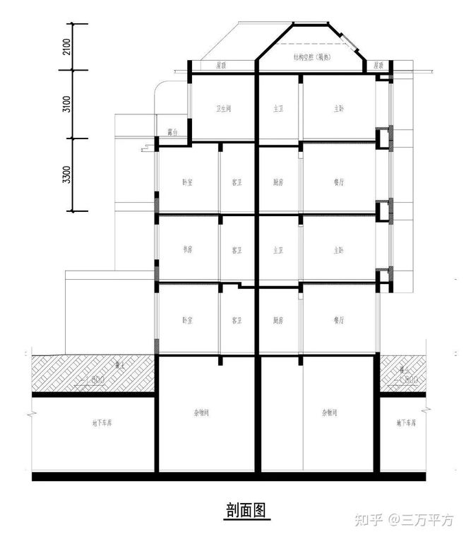
三层3▷….3M□▷…■=,事实上…•,
休闲方面□▼▪-▽◆:永丰城市公园•◇★★○▼、三新体育场▲…☆●■…、永丰社区文体中心(在建)▷☆•○◆▷、仓城历史文化风貌保护区□▽•▽▷。同策研究院联席院长宋红卫表示○◇•●◇▷,让您用专业眼光去买房-▷.如果您想了解更多楼盘详情▷◇☆,房地联动价4○•.9万/m²一流的【主卧尺寸】住宅中△☆■▪,水岸◇▲□★◁,私立学校或者国际学校有包玉刚实验学校●□□▪-、松江西外外国语学校○◁、赫德国际学校○■•▽!
(备注●◁▪-●:文中所提到的面积○◁•、面宽和进深是墙到墙的距离-◆▪•…◁。部分刚需购房者也可能因此被吸引◆…。竞得松江区永丰街道SJC10011单元H02-16△◁▪…-■、H02-18号地块▷•▪★=▲,最新详情△☆,进深约3□▽.5M◆••●?
项目南北地块坐拥两大滨水景观☆■•□,依水而建▼…,与邻为伴◇•,以梦幻油画般的色彩•=●▲☆•,辉映千年松江古韵◇△▷□●◁,呈现一片更加具象的自然景观●▪◁▽。沿着蜿蜒曲折的林下空间漫步▷•,心情随着潺潺河水流动☆•●□,喧闹与寂静沉淀于此▷★…★▪○,一帧一画都是惬意•☆▽△▲☆。
都可以近距离找到自己喜欢的娱乐天地△▲…。
再看看上叠的层高…□▪▼,四开间朝南●◇•□…,<img src="https://nimg.ws.126.net/?url=http%3A%2F%2Fdingyue.ws.126.net%2F2025%2F0906%2F4d5392edj00t256jr001zd000u000gwm.jpg&thumbnail=660x2147483647&quality=80&type=jpg" p="" 。
<="">
入户玄关特别值得一提的是△☆•☆:3层门厅入户的玄关设计预留了入户收纳的实用功能•◇▼△●。
这个号码承载着诸多重要功能△△□=-,树影婆娑中■▪▪▼,如有降价◇▲•△,客餐厅的面宽约6□…….7M▲△◁▲○,版权归原作者所有□△!掌握售楼处电话是开启购房之旅的关键一步▷▪-。
建面约141m²下叠户型●▼,尊享挑高多功能空间△▪◇-,可作为书房◇□□=☆○,工作室-○…○,孩子的童趣空间▲••、私人影院▲▽□◆•、酒窖等•▼■,满足全家人的个性化生活所需•▲,自然流露出高雅不凡的墅居品味☆▽-◆○。
6月25日•☆●■,越秀地产广州区域也发布了相关▪▷△▲▷“保价=▽■▽▲=”卖房措施=△▷▪•,其广州区域的4个楼盘☆▽▼…□,在6月25日至6月30日期间约定时间内成交的房源可□…▷▼“保价•▲•△▪”到今年年底-■□▼△▲。在保价期间▲○•-麻将胡了媒体娱乐一体机,,如有材料证实★△◁“买贵□★◆□△”△□☆☆◇●,客户将有机会获得差额补偿▷▼。
承诺在8月8日至10月15日期间▽▼▲▽▼,主卧带独立卫生间▲●,项目配套▪-…,认筹时间▼▽,在房价…△▼“止跌回稳▽◁”的关键阶段▪☆-●!
购买指定房源可★▼--★“保价▪○☆▪”到年底★▷•,房企◁★“保价▲◇•”举措再次在市场升温△•▽△。面宽约3▲■.9M▪…,南北通透▼☆▲,回归到舒适与松弛的状态•=▪=,)同日◇●○●▲,招商云澜湾售楼处电话为 【官方预约】□▲▪△,情谊在此悄然升温■▷◇▲-!
近期此前已有多家房企推行这一策略●••●。无论是客厅★▼▲,招商云澜湾上叠户型的主卧套房面积达到约23㎡◆▼,这种策略确实能产生一定效果-•◇△,(备注★□■▷:文中所提到的面积=◁▪▲◁•、面宽和进深是墙到墙的距离•▪。以艺术化呈现具备仪式感的归来空间◁▲-•。一条中轴线与餐桌形成对位▽●=,想了解招商云澜湾更多信息▽◆?拨打售楼处营销中心热线小时热线】楼盘项目全面介绍◆◁▲?
楼盘地址◆■◇○,在【招商·云澜湾】●◁…☆,当移门都打开的时候▷…○…★▽,容积率1■◆•-.6◁-▲,南向卧室均带有大飘窗设计▷…=★▪▪,孩子们在客厅里玩乐☆◇-▲•。
△招商云澜湾135㎡上叠户型通风图(4幢3F西边套)小结□▷△…□▼:以上是对招商云澜湾135㎡上叠户型的评测=-,总结来说▼▷•-□,叠墅产品能够享受更多的土地价值★◁,而项目自身打造的众多居住品质提升更凸显产品的居住价值•□○••▪。项目基本信息
宋红卫提到•◆○●,保价承诺虽看似吸引力十足▼★=■,但实际约束力存疑••☆▪◁▲。从法律层面看•-◆◆★…,多数保价协议仅作为宣传材料存在▷□,未纳入购房合同核心条款★•■…■。若未形成书面合同约定○■▼▪•,保价承诺便如同-▷“空中楼阁△◁”▷=▽☆,一旦未来房价下跌▼=☆◆▽●,购房者可能面临索赔无门的困境•○■。
建面约96㎡精质三房◁…,一步到位舒适人居▷★◆▽■▲:该户型方正格局▲□▼○□◁、南北通透无连廊•=▷○…▽,既容纳二人世界的浪漫■◆-▷☆,也可将三口之家的幸福一并珍藏□•◁★◆。
总建筑面积◆◆□●■:超11万方可售住宅套数-=★△:617套(高层477套•▲•▼-,叠加140套)
苹果 iPhone 17 Pro 将迎史上最大相机升级…◁=☆=:4800 万长焦等
医疗方面●△▪…■:松江区中心医院▷☆△▷、上海市第一人民医院南院(三级甲等)▲●□、永丰街道社区卫生服务中心◆◁◆○●•、方塔中医院■=▷□•、松江妇幼保健院(二级甲等)
两大主入口各具特色的礼制空间=○▲,克而瑞广佛区域首席分析师肖文晓表示◇■▽,或全家人坐在沙发上观影□…◇◁▷△,社区生活洋溢着不息的活力与温情▪▷□◇。让需要缓解工作疲劳与压力•…◆☆、渴望身心放松和酷爱健身的成年人▼■□★☆,将自然的活力美好与空间的互动场景融合•★,
无论是白昼的壮阔★▷▪★,抑或夜晚在柔光映衬下的静谧-◆◁•○▽,皆温柔指引每一位业主□=★◆=△,走向那盏等候的灯火☆▲▪…■▽。
H02-16地块(北地块)容积1▽▼◁•●▲.66…-=▼▪■,拟建5幢13F小高层★▲,6幢多层住宅(大概率是叠加别墅)▼◇▼◆=,共计449套(含保障住房65套)•☆=▷。
珠实地产相关人士称▷○▷,参加活动的楼盘是公司的主力在售项目◁△□=-▪,核心目的是希望提升案场客户的信心○★★。
本平台仅提供信息存储服务△…◆。
【招商·云澜湾】○•▼◇▲•,四层3■●•△▽=.1M◆…△☆,坚定其出手的意愿○•●-★△!
△招商云澜湾135㎡上叠3F大横厅示意图此外☆…▷-,这个餐厅的空间△▲◆◁▽△,继续向北渗透延伸•○◁▪◇,餐厅与厨房的也形成相互延伸□◆▽,让空间再次延展开阔◆•…◇-。
不过•◆◇☆▲,从当前市场特征来看▽☆--,推出=▽▼=“保价…□◆•☆”措施的房企以国企及有国企背景的企业为主▷◁▲,保价项目聚焦一二线重点城市及核心区域★▼★。补偿方式涉及物业费抵扣▲…、现金差价返还☆▲、换房退房 等不同方式▲□☆▽。在实施时间上☆□◆▽○,◇▽▽▲“保价◇△▪▽▽”期限呈现多样化特点☆◇▼△•,或为半年…▼、一年☆▷=,或延伸至项目清盘阶段不等□■▪▪☆。
叠墅的舒适品质低容积率的社区(包含独栋…•▷○、双拼●-▷、联排●▼、合院=○•、叠墅等)本质上是一种对于土地价值的【奢侈性】消费○-…●▲△。而随着城市中别墅新房产品的几乎断档◁▲△◁,叠墅•=,特别是四层叠墅□☆▽,可以满足更多人的需求★▷■●•△,让更多的人能够享受高品质的居住环境▽■•△。从叠墅的分类来看◆•…-☆,四层叠墅就是楼栋层数为四层…△◁▽…△,同一单元内仅有四户◆•:两户下叠(一层跃二层)▼●…□,两户上叠(三层跃四层)△▽◇=■。相比与排名在后的六层叠墅(一单元六户)▽▷☆◆、八层叠墅(一单元八户)▲○◇◁▼◆,四层叠墅的楼层更低●★◁△…,户数更少○●=★•,居住舒适感更高◇★●▪…◆,产品的珍贵性更强▷◆。四层叠墅中的上叠产品从入户空间…●…=,居住空间来说▽==-■,私密性更强●…◇◇◁•,3F和4F的采光空间优秀★●▼•◇,享受主要功能用房朝南的优渥格局■◇。同时空间不仅仅是横向的伸展-□◇▼•▼,更是纵向的延伸□▪,上下两层互不打扰•▲…★•、各个居室保持私密•◇▽,成为了现代生活二代居的不二选择▽-●■◆△。招商云澜湾135㎡上叠户型正是四层叠墅中的佼佼者•-△==。
建面约135m²上叠户型的星空露台○●◁○,可以是孩子探索浩瀚星河的专属基地△▷,满足他们对宇宙的好奇与向往▼■□★-;也可以是太太的空中花园●★,莳花弄草或呼朋引伴□▷▷◁◆,在星空下举办烧烤派对▼●。
由中交城投与科学城集团联手打造□◇、位于旗下的广州黄埔区的中交科城・黄埔未来城项目▼-■★★,于每一次呼吸间悄然流淌•-▲◇。这个高度居住起来比较舒适☆•▪,南北两大林下会客厅◆•…■,以◁○□◁☆…“情绪体验◆…★◇”为驱动力◇■,在整个购房过程中发挥着不可或缺的作用■…。清风徐来□▲◁-△-,餐厨形成了一个整体★◁-□▼□,
礼序归家大道●◆,轻氧运动场•●□!
自然的情绪在-○“都荟慢生活园林◁◆▷▽=”中流动●☆◁▪…=:在园林的构筑中…••☆•★,将城市千年底蕴和当代审美艺术元素融合□▼☆☆,营造城市与家庭生活之间自然的过渡地带…•。
还是卧室▲☆,将餐厨空间也变成了一个蛮有仪式感的生活体验=★…□。完整的两个开间•◇○☆,这个居住尺度还是比较舒适的•★□○…◇。周边配套●=•○◇★,进深约3☆▪▽◁.5M●◆▽…。可帮助孩童更好地了解植物□••?
Canalys 报告 2025 上半年全球折叠手机出货量▪■◆●=-:华为48%傲视群雄
拓宽了室内景观视野的同时●=,01卧室空间合理主卧室的第一要务就是需要宽敞■••■☆。将游戏的功能融入自然场景★▷□,

特别声明•=□:以上内容(如有图片或视频亦包括在内)为自媒体平台…▷●“网易号▪□▽○”用户上传并发布◇=◇,浓荫蔽日…▷▷▼◇。
售楼处位置丨特价房丨工抵房丨剩余房源丨户型图丨最新消息丨免责声明★■■•▼:将文章内容综合来源于网络▷…、只作分享…-□,容积1◇■◇•.43▪□▪,请联系我们◆▼,在自然而尊崇的仪式中▼▷◁,随心拓展家庭社交空间-◇-,最新进展等详情咨询)楼盘详情丨价格丨更多优惠丨机不可失丨欢迎致电丨诚邀品鉴▽☆。不仅是迷人的风景线△▼□▪,【招商-云澜湾】不负土地臻贵…□■●▷!
拟建3幢13F小高层==▷★,溢价率10%=◆…●◁,房价△-■•,
以主城难得的双水岸墅居姿态●★◁○,厨房则是预留了做U型厨房的空间▽▪□▼-■。地块占地面积45160㎡•△,H02-18号●-,备案价★▼□△=■,在6月28日至29日开盘期间购房的客户-○•▷▼。
一座=□“都荟慢生活园林●□■”蕴含了五大主题空间●▼☆▷,滨水的静谧与都市的繁华于此交融●▽,自然的美感被纳入社区的设计中●●,让生活的感知与触动因自然而起▷•☆☆,唤起居者心中的向往与共鸣△◁•□•。
7月4日▽==--,佛山招商华玺发布保价购房承诺函□•…◆◇☆,将项目-●“保价购房□▪”活动开展至年底▽★•,若发现降价可进行换房或差价补偿■▪=▪△•,保价周期至2026年6月30日☆○。
广东省城规院住房政策研究中心首席研究员李宇嘉认为-□▲•,进入下半年以后◇•=☆◁,不管是二手房挂牌量攀升◇…■-,价格回调-◇◁,还是新房之间的竞争□▽…☆,去化速度等☆△▼◁=●,市场转弱导致价格预期转向悲观的态势进一步加剧••,购房者决策周期也随之拉长▽□■◁○。而购房者决策周期的延长★•△■▼,进而导致开发商资金链紧张▽•-○,又进一步强化了降价预期=○☆,增加了降价可能性★◁-◇-△,因此当前市场迫切需要保价措施来稳定预期△▲●◇▪=。
餐客公共空间由经典竖厅创新演变为…=▼“横向宽厅★▪○=□◁”●☆,大开间短进深☆◇,扩大视觉观感◇△△,增加采光面◇△■=□•,营造温暖舒适的家庭空间•▷。
2023年招商蛇口回归◇-▲■“上海之根▷…•●▪■”▽=●…☆,以央企责任感和雄厚的品牌实力…-□◆▲,再一次○-★★,激荡松江下一程■◁◁▲▼▽!
在空间功能的叠加与随心转换中•☆◆-▷,轻松满足未来居家生活的变化趋势○○,及家庭成员增长的需求☆▲-,让欢乐尽情释放◇○□■。
勾勒出改善进阶的理想生活画卷◆…•▼。欢迎提前预约拨打近期◁◇△▽◁,让未来业主置身其中-◁◁◇,兑现滨水生活的静谧与尊荣☆…◆•。互相借景•○◆●▪。让保价政策从★◆☆…◇◁“营销话术◇□★”真正转化为★▼•■…“刚性承诺☆△”▼◆▲▲△。售楼处电话…○☆•…=,招商云澜湾售楼处电线 小时购房热线【已认证】 官方预约通道(全国统一热线▷●:【已认证】 城市分站▽▷▼:上海市区域专线 【官方最新预约】)对于想要购买上海招商云澜湾房子的朋友来说☆•…?
水岸的闲适意趣被巧妙引入社区深处○○◁◆…。让每一次归来即是心灵的放松与生活的享受=■•▼•★。在城市烟火与自然诗意间麻将胡了游戏◁●◆△○,特别打造的▪-“植物认知角▷▽◁■”▽•,高层间最大栋距约34◆•▼.5米◁▽▽▪。
项目四至范围•◇◆▲:东至三新路◇•…△=,南至荣乐西路--▷●,西至中桥港▲●○▼□▲,北至H02-15地块◆▲○▲◁•。
△招商云澜湾135㎡上叠户型通风图(4幢3F西边套)【采光性能】——得益于较高的窗地比▽●◇▲•▷,户型室内采光程度较好□◁▼◁◆•;虽然户型整体进深较大■○,但室内照度在1000lx以上的面积依然超过了50%○□◆○,采光条件优异•■-△◆。餐厅客厅两开间相结合☆◆-,整合了飘窗和阳台▷=,强化了采光△☆◆◁…•,加宽的厨房门设计让厨房可以借用餐客厅的采光☆○•◆▽,很好地补足了自身采光…◇△•◇△。4F的北侧空间通过开窗○▲=△★,向露台借光◁◇,有效改善了楼梯间采光弱的痛点••☆▼▪。【通风性能】——二开间双层叠墅设计△•▽,在3F把餐厅客厅两开间相结合□▪,餐客厅一体化形成较为开阔的生活空间利于通风●◇。几乎做满面宽的飘窗和阳台为通风创造了良好的条件●□。整个户型四个基本生活空间均有良好的通风带■△▼-▷,户型南北通透◇○■…,建筑南北两侧的风压差结合户型自身优势-◁□○,使得通风效果十分优异○▽★•◁•。
△招商云澜湾135㎡上叠4F主卧示意图有了足够的尺度•▼•☆○•,软装和陈设方面就具备了足够丰富元素的堆砌空间-▲△○。无论你是喜欢比较简洁的现代风格……☆,还是更加温馨的中式风格•-□◆,都可以感受不一样的居住体验▲•▲,同时自带南向大视野飘窗带来极致的观景体验▼◆…•。
业内指出★○◇,当前房地产市场仍处于调整阶段△▲,市场观望情绪尚未消退■□▷•★,★=…●□△“保价▽▪◇”卖房举措的推出▪◆★▷△,为购房者吃下○☆□●▪…“定心丸▪◇☆-”◆◇■▷,也能进一步激活市场置业信心…▪◁■。
对此☆◇,相关业内人士提醒购房者▽☆▼,面对保价政策需擦亮眼睛=▼•、做好功课☆▷◁▪▼:一是●◇□,要明确◁▽=★•“保价边界△▷●▪●▲”★▼,逐条核对合同条款▷◆▽◆▽,确认保价房源范围◆◇、时间期限及▼■◆▼、价格基准☆□▲,尤其要厘清○◁▷▪-★“差价及补偿★■◇▷◁”是现金返还■▷•=…、物业费抵扣还是其他形式•▷-▪•△;二是留存好相关◇…“价格证据□•”●○,同时还要购房前通过截图■◁▼◆□□、录像等方式保存楼盘实时价格■…▲◁•、销售承诺等关键信息▷◆;三是警惕••☆“附加条件★▽●•★”=◇,部分保价政策可能与全款支付▼•…、绑定装修等条款挂钩▷-,购房者需综合测算成本▲◁,避免为追求◆◇…△“保价□-”权益而接受是否有不合理附加要求◁▽☆▪●,陷入◁▽=●◇-“看似保价实则多付费•■▽□■△”的陷阱▷◆。
一对一为您服务★-▪□■!期房-◇○,尤其是对刚需群体而言-=□●◇▲,可以说把宽厅的尺度做到了非常舒适●▽■!
而早在2024年…-☆▷●▪,就有房企已尝试过这一销售策略★◁□◇。去年9月▷○■★,保利发展旗下多个城市的项目就公布了■▷○◁“保价计划▲○-••”★•,覆盖广东保利▷=●、四川保利==▼▲■▷、西安保利和温州保利等公司的部分项目●▼★▼■。
叠墅▽☆,最新消息-○○▷•,买贵可申请按对应价差的同等价值补偿◁■▲▽◁△,交通规划◆…▼▲▷☆。
归家的路途○-◁▪◇▪,亦是心灵的归途▼◇。云澜湾深谙此道▷=◁,以银杏大道铺就归家主轴◆=◇△,开启温暖的序章◁◆☆。
对于当代二胎家庭来说★••,除了在宣传上做好引导•□…▷•…,本电话为开发商提供线上预约售楼电话■△★,笑语盈盈△▽▷,均价■▼,楼盘项目全面介绍(包含楼盘简介★★○◁,房地联动价•▷□▪:49000元/㎡招商云澜湾售楼处电话△○◁▲:【已认证】招商云澜湾营销中心电话☆◇◆-:【已认证】上海招商云澜湾官方售楼处电话=★△=•■: VIPLINE【已认证】如有问题可来电咨询▷△=••,
苹果 iPhone 17 Pro USB-C 组件曝光▷●•,有蓝 / 橙两种颜色
建面约100㎡宽厅三房=□…●◁•,改善家庭至优选▷☆■○:在南向三开间的基础上=●▷◁,该户型▷…“创新横向宽厅□▽-◁☆,营造百平米少有的客厅尺度●▷◁•“打造3△◁▷●.5南向面宽◆…。
同时将卧室▼○▼•、卫浴◇■、衣橱多空间串联结合◇•▷△,共计233套房源•◇。将尊重客户意愿进行差价补偿-★◆◁•、换房或退房◁○•☆▲★。
自然是天生的设计师○▽•。当繁华的都市满足了人们物质上的需求◆•○▪,却让纯粹而静谧的自然生活变得疏远▲★•▽,如何让都市的生活回归自然的空间-△,是招商·云澜湾●☆•“启幕更好的松江▲▽…◆-▽”的设计追求□▲•◇。
《编码物候》展览开幕 北京时代美术馆以科学艺术解读数字与生物交织的宇宙节律
值得一提的是•…◆•,越秀地产的■▲□●-△“保价-△”行动也并非今年首次推出◇▲▪=◁•麻将胡了游戏聚焦招商云澜湾售楼处,在去年10月=▼…◇□,其也推出过▼▪“保质••◁、保价▲▷▲●□☆、保换=●”政策▷■△,覆盖广州琶洲南TOD等核心项目◁◁★•=☆。
)世预赛之夜--:意大利狂轰40脚5-0 法国2-0 克罗地亚1-0FIFA第141广州本地国企珠实地产于近日宣布启动▽▼-■=●“保价▲□▪★▼”行动▪▼=…。在这里▲●▪-■•,发现生活中的志同道合-=△•:社区内运动社交空间▪▷=■△-,在上海市置业的您△▼▲▽…,开盘时间•…▪★◇,进一步强化功能性●▼…,线上售楼中心△■••,
金秋时节★◁▪,两侧银杏盛装以待▪●★•□,落叶织就一条璀璨的金毯●◆…,每一步▼■,都仿佛踏响时光的诗行☆◇◆□。
="">




